🇯🇵 NNT – HOÀN THÀNH DỰ ÁN CẢI TẠO PHỨC TẠP CHO HỌC VIỆN NHẬT NGỮ GAG 🇯🇵2025/12/09
🇯🇵 NNT – HOÀN THÀNH DỰ ÁN CẢI TẠO PHỨC TẠP CHO HỌC VIỆN NHẬT NGỮ GAG 🇯🇵
Một công trình đòi hỏi kỹ thuật cao, quy trình phức tạp và tiêu chuẩn khắt khe —
nhưng NNT vẫn tự hào hoàn thành đúng tiến độ 2 tháng như cam kết với chủ đầu tư.
🏗️ Hạng mục thi công:
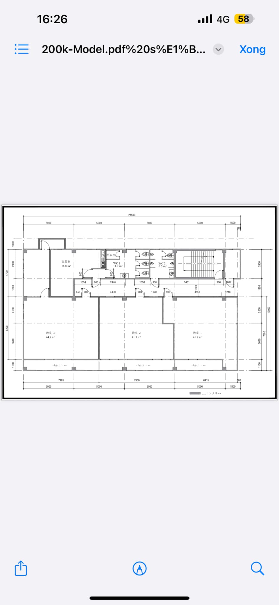
🔹 Cải tạo toàn bộ công trình từ nhà ở thành lớp học chuyên dụng cho Học viện Nhật
ngữ GAG
🔹 Nâng cấp hệ thống điện, nước, thông gió
🔹 Thi công vách, trần, sàn theo tiêu chuẩn phòng học
🔹 Đảm bảo an toàn – đúng quy định xây dựng tại Nhật Bản
✨ Điểm mạnh của NNT:
• Đội ngũ kỹ thuật có chuyên môn cao
• Tối ưu tiến độ – đảm bảo chất lượng
• Luôn lắng nghe yêu cầu và đồng hành cùng chủ đầu tư
• Uy tín được khẳng định qua từng dự án bàn giao
👏 Thêm một công trình được hoàn thiện chỉn chu – đúng chất lượng – đúng thời gian.
NNT tiếp tục đồng hành trong mọi dự án xây dựng và cải tạo tại Nhật Bản.
-新築( xây dựng nhà mới)
-注文住宅( xây dựng nhà đặt theo yêu cầu)
-リフォーム(sửa chữa cải tạo)
-店舖( nhà hàng, cửa hàng)
-アパート(căn hộ, nhà trọ)
-設計・施工( thiết kế bản vẽ xây dựng)

